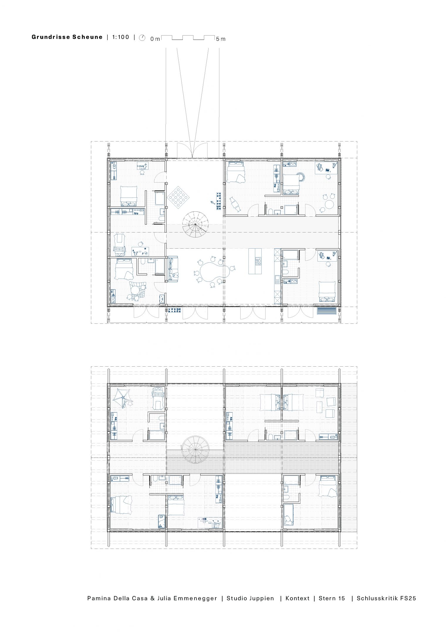
FS 25 – Sarneraatal, Studio Juppien